Das Projekt

Cruciskirche vor 1990

Mit der Gründung des Fördervereins Cruciskirche Sondershausen e. V. am 06. November 2001 wurde eine Initiative gestartet, welche die Cruciskirche aus dem Ruinendasein wieder in das städtische Leben einbinden soll. Wir versprechen uns davon eine Initialzündung für die zukunftsorientierte Entwicklung des Wohngebiets am Wippertor, des Planplatzes und für die Altstadt Sondershausens. Die Idee zur Entwicklung der Cruciskirche als Bürgerzentrum wird in der Satzung als Zweck wie folgt formuliert:

"Der Zweck des Vereins besteht in der Förderung der Denkmalpflege und Förderung von Kunst und Kultur.
Diese Satzungszwecke werden insbesondere verwirklicht durch die Beschaffung von Mitteln für die Stadt Sondershausen zur Verwirklichung von o. g. steuerbegünstigten Zwecken.

Daneben kann der Verein seinen Förderzweck auch unmittelbar selbst verwirklichen durch:

  • Kulturveranstaltungen
  • Konzerte
  • Ausstellungen
  • Vorträge u. a. zum Denkmal der ehemaligen St. Cruciskirche
  • Erhaltungsmaßnahmen am Denkmal der ehemaligen St. Cruciskirche ..."

Daraus leitete sich unser Ziel ab, eines Tages aus der Ruine wieder ein Gebäude entstehen zu lassen, das, wie in hunderten Jahren vorher, Bürger in seinen Bann ziehen soll. Nicht als Kirche, jedoch als Begegnungs- und Veranstaltungsstätte für Bürger und Institutionen der Stadt und des Kreises.

Je mehr Bürger und Betriebe sich beteiligten, ihre Eigenleistung und auch finanzielle Mittel zur Verfügung stellten, um so mehr konnte die Idee zur Wirklichkeit werden. Unter dem Motto: „Wir bringen Leben in alte Gemäuer“ bewiesen die Mitglieder des Fördervereins und die Bürger, dass sie mit eigener Kraft und Beharrlichkeit ihrer Stadt zur inneren Stabilität und zu mehr Ansehen verhelfen können.

Cruciskirche heute

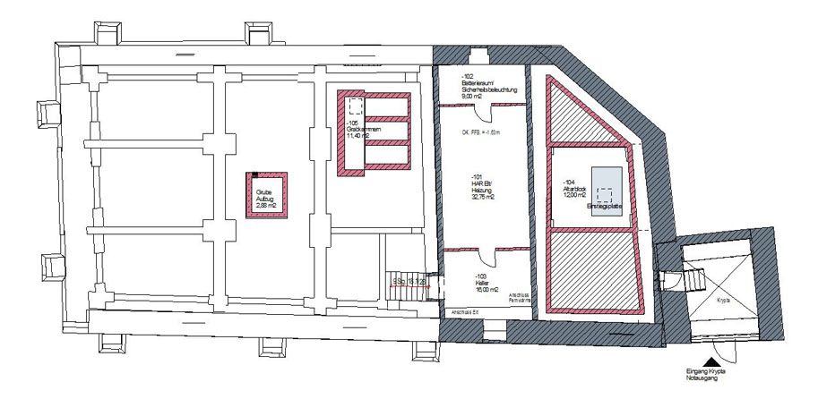
Projektskizze Untergeschoss

Projektskizze Untergeschoss

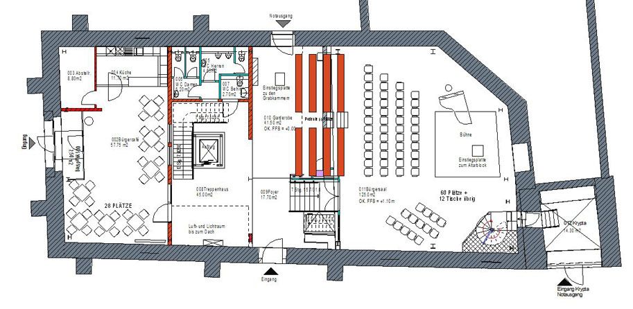
Projektskizze Erdgeschoss

Projektskizze Erdgeschoss

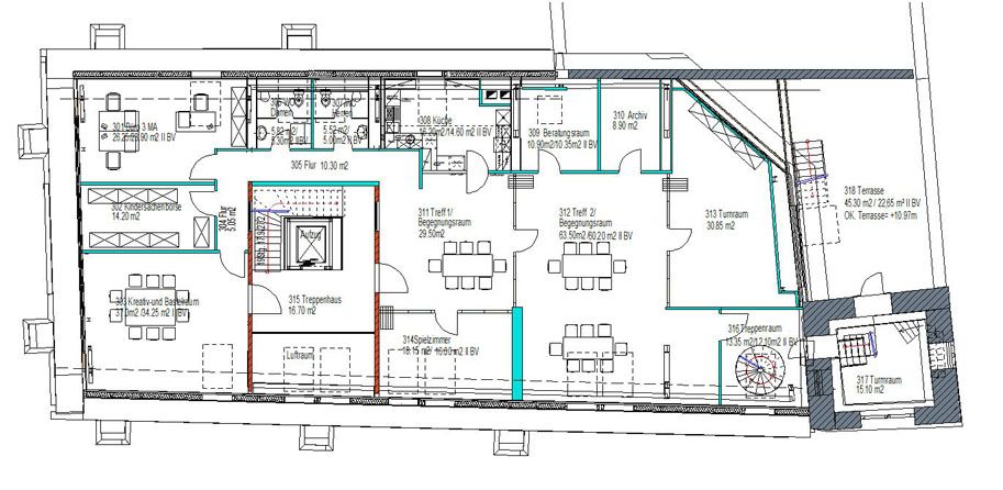
Projektskizze Obergeschoss

Projektskizze Erdgeschoss

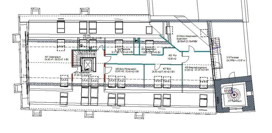
Projektskizze 1. Dachgeschoss

Projektskizze 1. Dachgeschoss

Projektskizze Erdgeschoss

Projektskizze 2. Dachgeschoss

Projektskizze Obergeschoss

Projektskizze Seitenansicht

Förderverein Cruciskirche Sondershausen e.V.